項目名稱:上海寶山食品廠房裝修工程。
項目地址:寶山區金地威新工業園區。
所屬行業:食品行業。巧克力的生產與銷售。
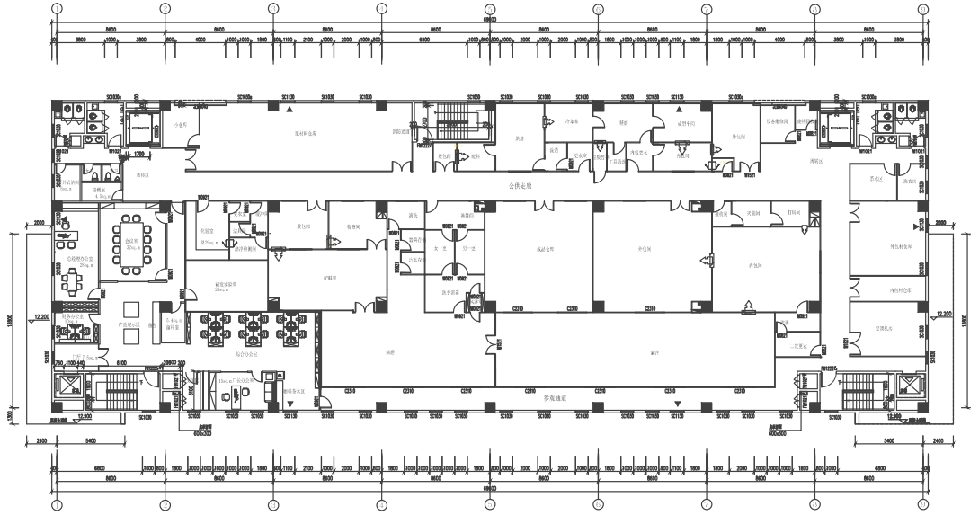
項目面積:1800平方。車間施工:1300平,辦公區域:500平。
潔凈等級:十萬級,局部萬級。
裝修項目:潔凈車間裝修,辦公室裝修。
施工工期:120天。
施工項目:50mm凈化板隔墻吊頂,管道工程,凈化機組空調系統安裝工程,動力電工程,消防工程,照明工程,水電工程,混凝土澆筑,PVC卷材施工,潔凈設備安裝,辦公室裝修工程。

食品廠潔凈車間裝修施工步驟可以分為以下幾個階段:
籌備階段: 在開始施工之前,需要進行一系列的籌備工作。首先,確定潔凈車間的設計方案,包括布局、設備擺放等。其次,制定施工計劃,確定施工時間和工期。還需要進行材料采購和人員招聘等準備工作。
土建施工階段: 土建施工是潔凈車間裝修的第一步。首先,進行地面處理,包括清理、修補和鋪設地面材料。然后,進行墻面處理,包括清理、修補和涂刷防塵漆。接下來,進行天花板處理,包括清理、修補和安裝吊頂。最后,進行門窗安裝,包括門窗的選購和安裝。

空調系統安裝階段: 潔凈車間需要安裝空調系統,以保持恒定的溫度和濕度。首先,進行空調設備的選購,選擇適合潔凈車間的空調設備。然后,進行空調管道的布置和安裝。最后,進行空調設備的調試和運行。
凈化設備安裝階段: 潔凈車間需要安裝一些凈化設備,如空氣凈化器、過濾器等。首先,進行凈化設備的選購,選擇適合潔凈車間的凈化設備。然后,進行凈化設備的安裝和調試。
電氣設備安裝階段:
潔凈車間需要安裝一些電氣設備,如照明設備、插座等。首先,進行電氣設備的選購,選擇適合潔凈車間的電氣設備。然后,進行電氣設備的布線和安裝。最后,進行電氣設備的調試和運行。
清潔和驗收階段: 在施工完成后,需要進行清潔工作,包括清理施工現場和潔凈車間內部。然后,進行驗收工作,包括對施工質量和安全性進行檢查和評估。如果符合要求,就可以正式投入使用。
以上就是是食品廠潔凈車間裝修施工的基本步驟,具體的施工流程還需要根據實際情況進行調整和安排。在施工過程中,需要嚴格按照相關規范和標準進行操作,確保潔凈車間的質量和安全性。
電子光學案例
PURIFICATION CASE
生物制藥案例
PURIFICATION CASE
醫療器械案例
PURIFICATION CASE
食品日化案例
PURIFICATION CASE